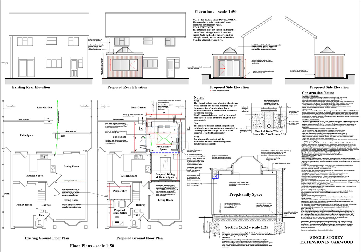
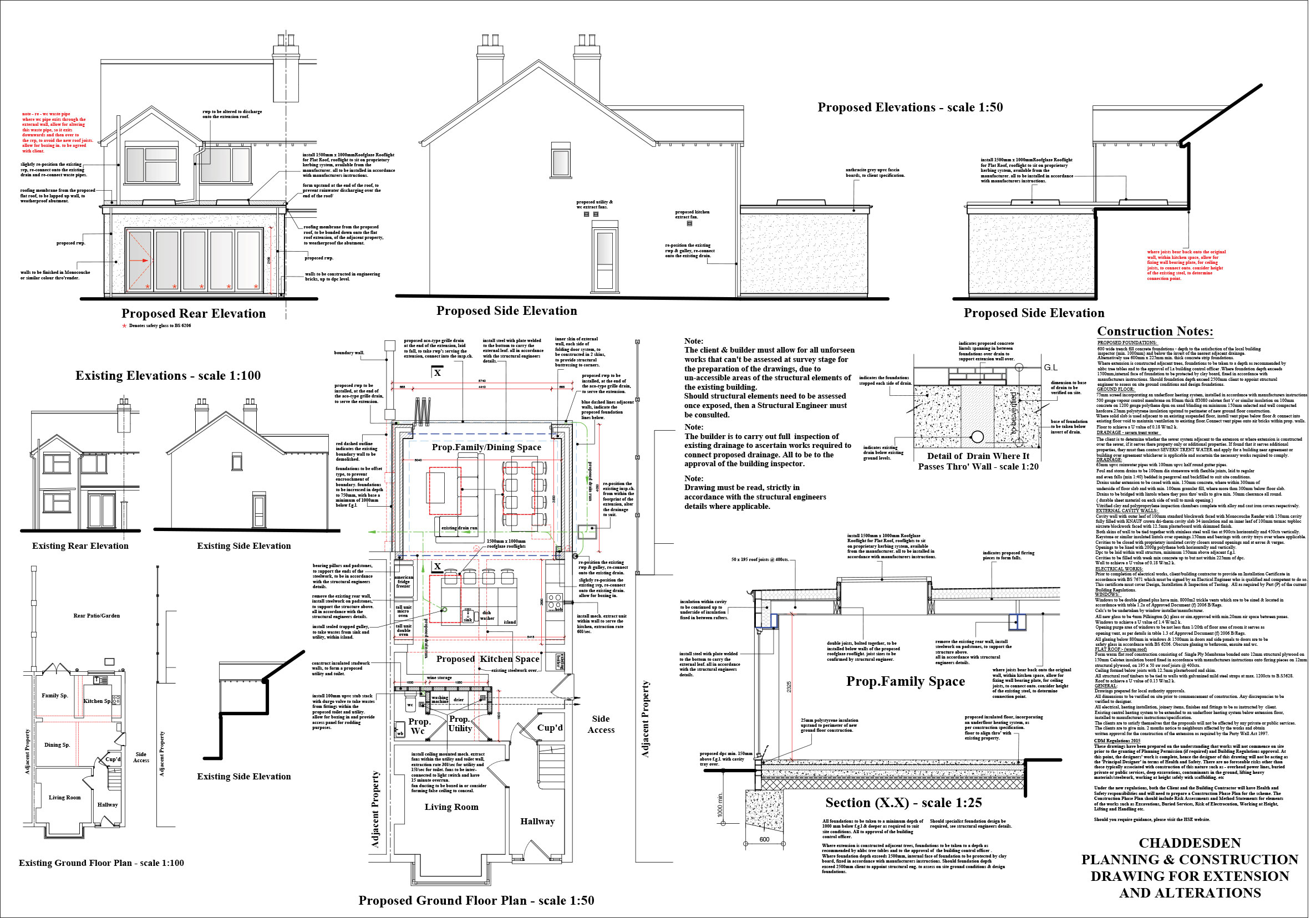
SINGLE STOREY EXTENSIONS IN DERBY
It might be that you just need an extra bit of room in your house or are looking to plan for another ground floor bedroom or extended kitchen. We have extensive experience in planning and designing single storey extensions through derby.
Have a look at a example below and contact us to begin your journey.